Pfarrhaus
Auf der Insel

300-jährig mit Umbaupotential

Eine Fotografie des hellen Treppenbereiches, das Tragwerk des Obergeschosses ist ebenfalls sichtbar.
Ein Foto von einem Raum aus dem Erdgeschoss, in dem ein Balken der erhaltenen Tragstruktur steht.

Weiterbauen

Das Pfarrhaus auf der Insel in Rödelheim blickt auf eine über dreihundertjährige Nutzungsgeschichte zurück. In Fachwerkbauweise errichtet als Pfarrdienstwohnung zur benachbarten Cyriakuskirche – wurde es im Laufe der Jahre umgebaut, erweitert und zuletzt zum reinen Wohnhaus mit drei Parteien umgenutzt.

Heute ist es wieder Gemeindebüro und Amtsstelle der Pfarrperson, die mit ihrer Familie im Ober- und Dachgeschoss wohnt. Hierfür wurden tiefgreifende Sanierungsarbeiten am Fachwerk durchgeführt und der Dachstuhl ausgebaut.

Der Schnitt des Pfarrhauses, durch den die Wendeltreppe außen am Haus zu erkennen ist.
EIn Baustellenbild auf dem das freigelegte schwer zu sehen ist.
Eine Aufnahme der Baustelle auf welche aufgetürmte alte Backsteine zusehen sind.
Eine Fotografie des Innenbereichs, mit Blick auf die Treppe und einem hellen Raum.
Eine Fotografie des Dachgeschosses mit Fokus auf die erhaltene Tragstruktur.

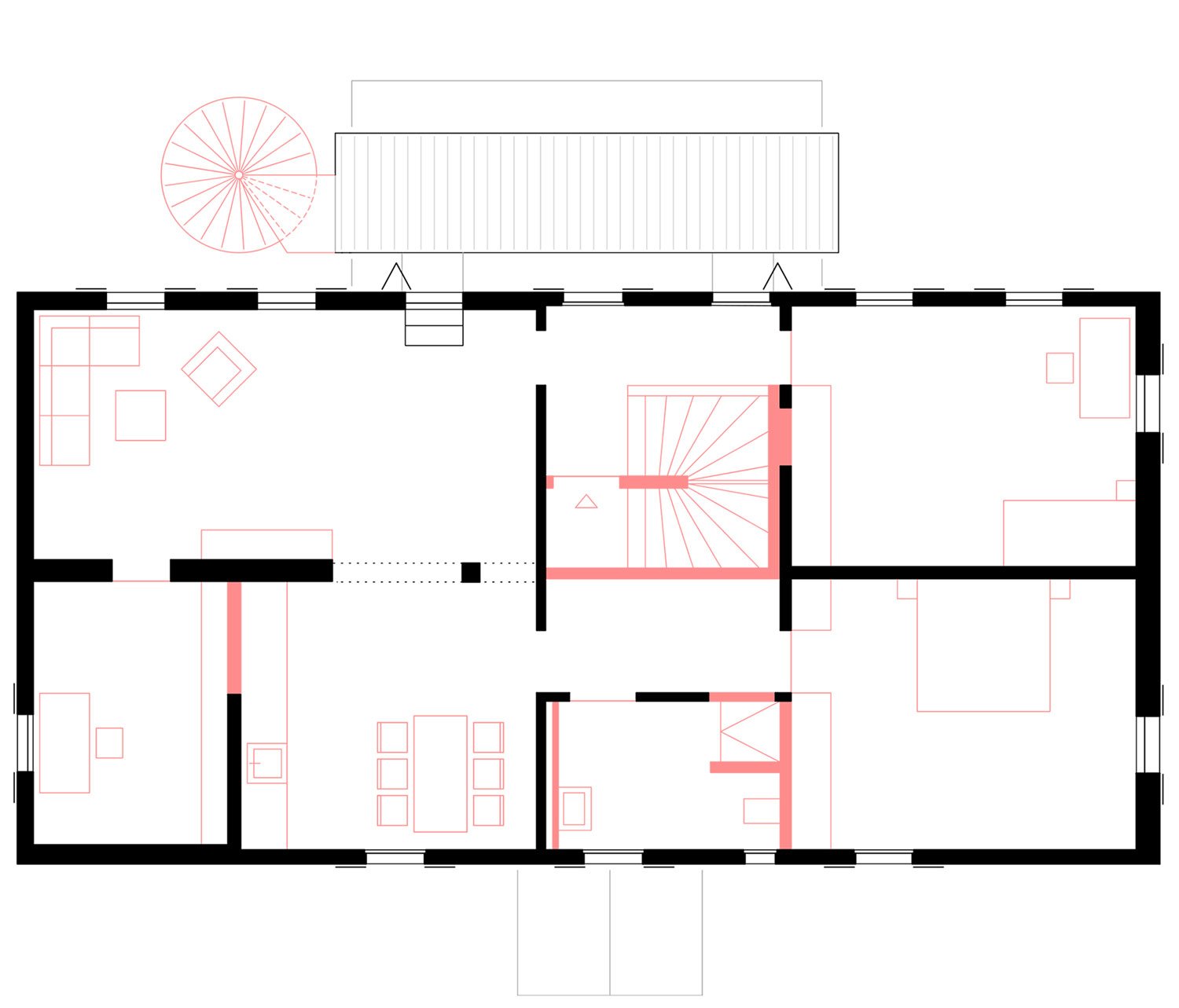
Teile der historischen Tragstruktur sind bewusst sichtbar gehalten und im Innenraum mit natürlichen Materialien wie Lehmputz und Linoleum kombiniert. Der Treppenaufgang wurde ertüchtigt, so dass eine spätere Teilung in bis zu drei separaten Wohneinheiten möglich ist.

Detailaufnahme des Tragwerks im Dachgeschoss.

Angetrieben von der ständigen Anpassung, die das Haus seit seiner Errichtung erfahren hat, ist somit einerseits sein Erhalt gesichert und gleichzeitig der Grundstein für ein zukünftiges Weiterbauen gelegt.

Ein Grundrisse der drei Geschosse.
Ein Grundrisse der drei Geschosse.
Ein Grundrisse der drei Geschosse.
Eine Schwarz Weiß Fotografie des Eingangs vom Pfarrhaus.

Frankfurt-Rödelheim
Auswahlverfahren 1. Preis, Beauftragung
2020-2024
bis 2023 als ARCHITEKTEN STEIN HEMMES WIRTZ